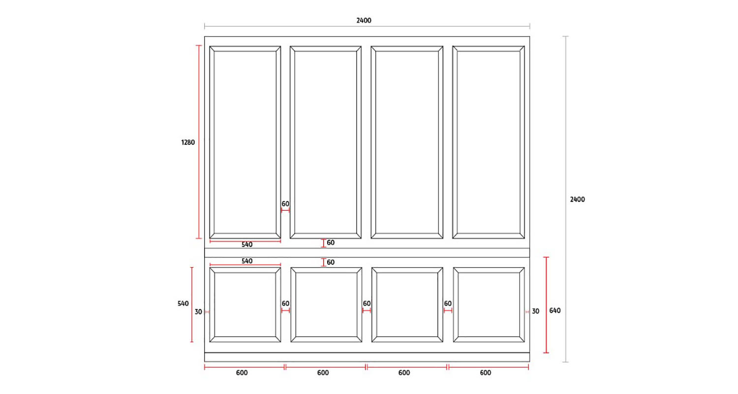
1. Ruudukkolistoitettu seinä
Yhdistä vaakalautoja pystylistoituksen väliin, niin saat koko seinän kokoisen hyllykön. Näppärää!

Pehmeän beige ruudukkoseinä on rauhallinen ja mielenkiintoinen yksityiskohta, jonka ilme muuttuu asetelmia vaihtelemalla.
Tee näin:
Suunnittele seinäsi mittoihin sopiva säännöllinen ruudukko ja laske listan, naulojen sekä maalin menekki. Maalaa seinä, laudat ja listat kerran ja anna kuivua. Merkitse pystylistojen ja hyllyjen paikat seinään ja kiinnitä rivi kerrallaan pystylistoista alkaen niin, että voit naulata vaakalaudan sitä alhaalta kannatteleviin pystylistoihin kiinni. Jatka, kunnes ruudukko on valmis. Maalaa seinä vielä kertaalleen lautoineen ja listoineen.

Tarvikkeet:
- Pystylistoina Cello puuvalmis mänty mattolista 15 x 20 x 3200
- Vaakahyllyinä Cello höylätty mäntylauta 15 x 70 x 3300
- Maali Tikkurilan Harmony Tikkurilan Beige
2. Modernisti listoitettu seinä
Sommittele graafinen, epäsäännöllinen vinoruudukko tapetoidun seinän päälle ja toteuta se kultaiseksi maalatuilla, aivan ohuilla listoilla.

Näyttävä seinä ei tauluja kaipaa!
Tee näin:
Mittaa seinä ja jaa se sekä pysty että vaakasuunnassa neljään tai viiteen osaan. Hahmottele paperille mittojen mukainen säännöllinen apuruudukko. Asettele pystylinjoille listat ja sommittele apuruudukon risteyskohtien kautta kulkevia vinoja listalinjoja niin, että kokonaisuus pysyy graafisena. Laske listan, maalin ja naulojen menekki.
Sahaa listat suunnitelmasi mittojen mukaan, vinot risteyskohdat jiiriin. Tapetoi seinä ja maalaa paneelit. Mittaa ja merkitse listojen paikat ja kiinnitä listat paikoilleen.

Tarvikkeet:
- Boråstapeter Soft
- Feelings 4626 -tapetti
- Cello puuvalmis mänty lasilista 12 x 15 x 3200
- Tikkurilan Taika-helmiäismaali, kulta
3. Klassisesti listoitettu seinä
Tee arvokkaan oloinen, nostalginen ja klassinen panelointi boordilistoilla.

Tee näin:
Suunnittele seinän tai seinien mittoihin sopiva panelointikuvio. Laske listan, maalin ja naulojen menekki. Sahaa listat oikean mittaisiksi, ruutujen listat jiiriin. Maalaa seinä ja paneelit, anna kuivua. Mittaa ja merkitse listojen paikat ja kiinnitä listat listanauloilla paikoilleen. Maalaa seinä listoineen.

Tarvikkeet:
- Arvolistan puuvalmis boordilista mänty 9 x 40 x 3200
- Tikkurilan Harmony Tikkurilan Harmaa
4. Puoliksi listoitettu seinä
Kokoa seinän alaosaan simppeli kuvio kevyestä MDF-listasta ja yhdistä se näyttävään tapettiin.

Puolikkaan seinän listoitus on todella helppo toteuttaa!
Tee näin:
Mittaa seinä tai seinät ja suunnittele kokonaisuuteen sopiva puolipanelointi. Laske listan, maalin, tapetin ja naulojen menekit. Pyydä K-Rautaa sävyttämään seinämaali MDF-listan sävyiseksi ja vaikka leikkaamaan listat suunnitelmaasi sopiviksi.
Maalaa seinän alaosa, anna maalin kuivua ja tapetoi yläosa niin, että tapetin alaraja jää ylemmän poikkilistan alle. Mittaa ja merkitse listojen paikat ja kiinnitä ne listanauloilla.
Tarvikkeet:
- Cello Decor himmeä sisustusmaali valkoinen
- Tapetti BN Panthera 200354
- Cello-tapettiliima
- Jalkalista 12x58x3300 MDF valkoinen melamiini
Näin onnistut listoituksessa:
- Varmista, että puulistat ovat aivan suoria. Taipuneet listat irvistävät ja irtoilevat.
- Jos teet listoitusta yksin, käytä naulapyssyä. Homma onnistuu toki vasaralla ja nauloillakin, mutta saatat tarvita apukäsiä listojen paikoillaan pitämiseen.
- Hanki seinämateriaalille sopivat naulat.
Osta tarvikkeita:
Mattolista Cello 15x20x3200mm puuvalmis
Lasilista Cello 12x15x3200mm puuvalmis
Höylätty Cello 15x70x3300 US mänty
Jalkalista 12x58x3300mm MDF melamiini puhdas valkoinen 362-10
Cello Decor Sisustusmaali himmeä 9l PM1 valkoinen sävytettävissä
Cello Decor Sisustusmaali himmeä 9l PM1 valkoinen sävytettävissä
104€/kpl
11,56€/l
Tilaa maali helposti valmiiksi sävytettynä verkkokaupasta ja säästä aikaa noudossa!
Tilaa sävytettynä
Harmony Sisustusmaali 2,7l C sävytettävä
Harmony Sisustusmaali 2,7l C sävytettävä
62,90€/kpl
23,30€/l
Tilaa maali helposti valmiiksi sävytettynä verkkokaupasta ja säästä aikaa noudossa!
Tilaa sävytettynä
Tapettiliima Cello Combi 5l
Liity K-Raudan remonttiasiakkaaksi ja hyödynnä palveluedut

K-Raudan remonttiasiakkaana saat kaiken kokoisia remontteja helpottavia palveluita käyttöösi. Autamme sinua tarvittaessa suunnittelusta remonttijätteen kierrätykseen saakka.

