K-RAUDAN LEHDISTÖTIEDOTE 25.5.2021
K-Raudan ja Ainoakodin moderni asuntomessukohde Lohjalla tuo esille suomalaisia suunnittelijoita – Ainoa Fiksu -koti on muunneltavissa käyttäjän tarpeisiin
K-Raudan ja Ainoakodin asuntomessukohteessa pääsee ihastelemaan suomalaisten suunnittelijoiden kuvatapetteja ja kotimaisten valmistajien sisustustuotteita. Erikoisuutena kohteessa on taloon yhdistetty ulkosauna, jonne kuljetaan terassilta. Ainoa Fiksu -talo tarjoaa saavutettavan unelman kompaktin kokonsa ja edullisuutensa ansiosta.
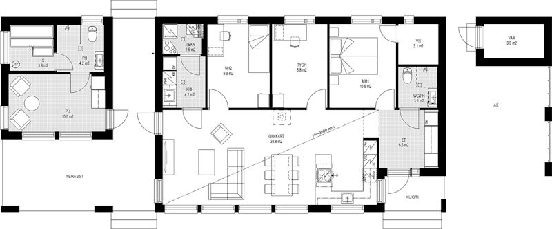
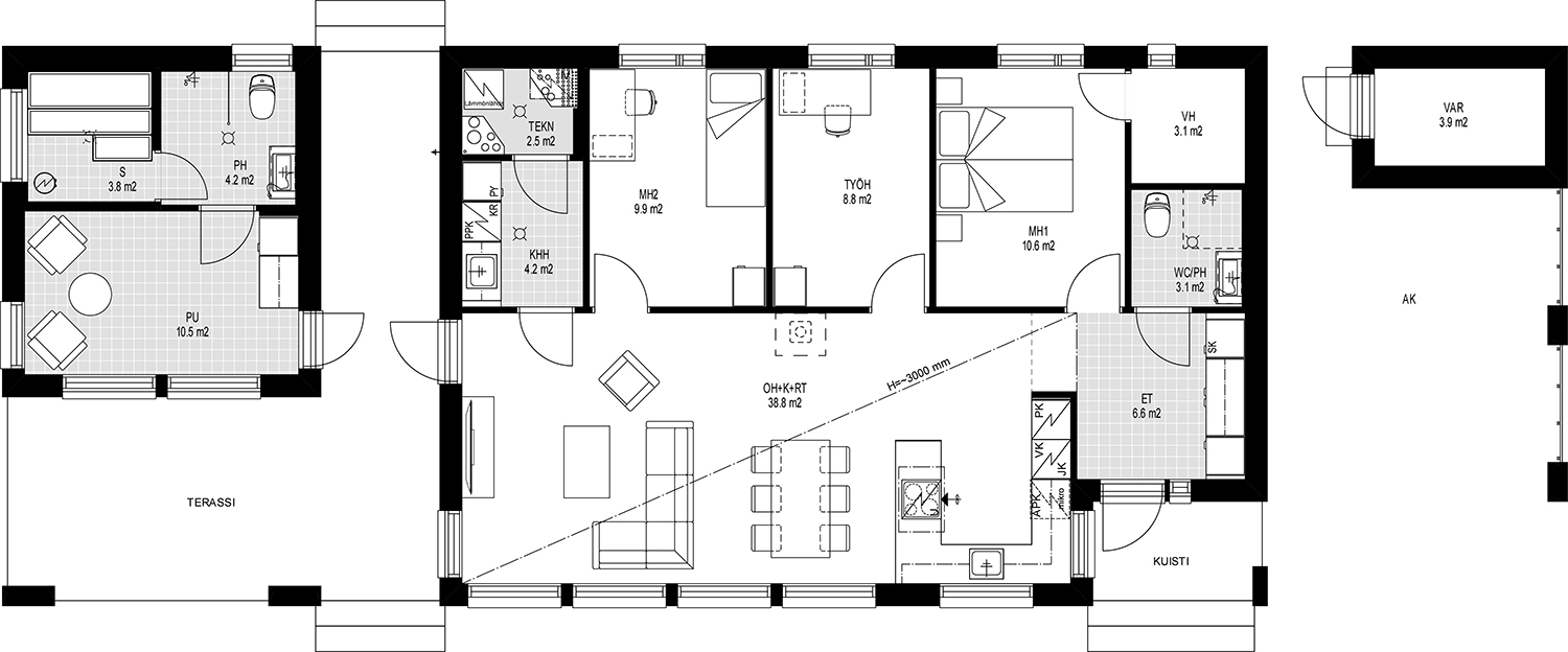
Lohjan asuntomessualueella sijaitseva K-Raudan ja Ainoakodin 110-neliöinen kohde yhdistää kompaktit tilat ja modernin ulkoasun. Ainoa Fiksussa tila on käytetty tehokkaasti. Yhdessä kerroksessa sijaitsevat kolme metriä korkea keittiö ja olohuone isoin ikkunoin. Makuuhuoneita on yhteensä kolme. Kohteessa on lisäksi oma saunarakennus, joka yhdistyy taloon terassin kautta. Saunan yhteydessä olevat tilat toimivat tarvittaessa myös työ- tai vierashuoneena. Kohteen kaikki pintamateriaalit ovat K-Raudan valikoimasta.
Lohjan asuntomessukohde numero 15 edustaa K-Raudan Ainoakoti-mallistoa. Talon ulkoasun väritys on rauhallinen ja pohjoismaisen klassinen. Kohde on suunniteltu pienelle lapsiperheelle. ”Ainoa Fiksu -malliston talot ovat muunneltavissa asukkaiden ja elämäntilanteiden mukaan. Tilaaja voi vaikuttaa talon tekniseen varusteluun ja hankkia taloonsa tarvittaessa lisäelementtejä, esimerkiksi sähköauton latauspisteen tai aurinkopaneelijärjestelmän”, K-Raudan talomyynnin tuotepäällikkö Timo Lukkarila sanoo.
Suomalaisten suunnittelijoiden kuvatapetteja ja pienyrittäjien tuotteita
Kotimainen suunnittelu näkyy Ainoa Fiksu -kodissa erityisen laajasti: Valokeilaan pääsevät kotimaisten suunnittelijoiden ja pientuottajien tuotteet niin kuvatapeteissa, kalusteissa kuin sisustusesineissäkin.
”Kotimaisena toimijana K-Rauta haluaa nostaa esille suomalaisen työn tärkeyttä. Jo nyt merkittävä osa K-Raudan myynnistä tulee kotimaisista tuotteista. Halusimme myös asuntomessukohteessamme nostaa valokeilaan kotimaisia tuotteita ja suunnittelua”, kertoo K-Raudan ketjujohtaja Olli Pere.
Lastenhuoneen ja työhuoneen sisustuksen on suunnitellut kuvittaja Kaisa Kartela. Lastenhuoneeseen tuo leikkisää tunnelmaa Kartelan yksinoikeudella K-Raudalle luoma hauska Cello-kuvatapetti ”Kuuhunkurkottaja”. Koko kuvatapettimallistolle on myönnetty Suomalaisen Työn Liiton Design from Finland -merkki tunnuksena siitä, että tuotteet on suunniteltu Suomessa.
"Kuuhunkurkottajan eläinpoppoon luonnonläheinen värimaailma jatkuu myös muualla huoneen sisustuksessa. Iso osa kalusteista on hankittu kierrätettynä. Lastenhuoneessa nähdään lisäksi mitä suloisimpia kotimaisten pienyrittäjien tuotteita", Kartela kertoo.
Työhuoneeseen Kartela loi boheemia ilmettä sisustuksella. Myös tässä huoneessa suunnittelun pohjana toimi Kartelan K-Raudalle suunnittelema kuvatapetti "Haaveilija". "Työhuoneen sisustus on suunniteltu tavanomaisen etätyöpisteen sijaan harrastekäyttöön. Sisustuksen punaisen langan muodostaa ikkunan äärelle rakentuva taiteilijan työpiste tarvikkeineen. Kuvatapetin rauhallinen värimaailma toistuu muualla huoneessa lämpimän harmaan, valkoisen ja käsittelemättömän puun sävyissä. Työhuoneen piensisustuksen kohdalla oli luontevaa tehdä yhteistyötä kotimaisten muotoilijoiden kanssa ja kalusteet tulevat niin ikään kotimaisilta yhteistyökumppaneilta”, kertoo Kartela.
Muiden tilojen sisustamisesta vastaa stylisti Anna Biström. ”Suunnittelussa näkyvät kotimaisten yrittäjien tuotteet niin kalusteissa kuin sisustusesineissä. Suunnittelutyötäni ohjasivat ennen kaikkea laadukkaat tuotteet, luonnonmateriaalit ja maanläheiset sävyt. Esimerkiksi olohuoneen suunnittelussa inspiroiduin erilaisista tekstuureista”, hän kertoo.
Lohjan asuntomessujen Ainoa Fiksu -kohde kuuluu Ainoakoti-talomallistoon, joka on saatavilla K-Raudan talomyyntipisteistä kautta maan. Ainoakodista on saatavissa Ainoa Fiksu -malliston lisäksi keväällä 2021 lanseerattu Ainoa Hirsikoti -mallisto. Ainoakoti-brändin myynnistä vastaa K-Rauta ja Ainoakodin rakentajana toimii Suomen suurin talovalmistaja DEN.
Tervetuloa tutustumaan!
Tule tutustumaan Asuntomessujen Ainoa Fiksu -kohteeseen ja hakemaan ideat sisustus- ja rakennusprojekteihin. Lohjan asuntomessut ovat avoinna 9.7. - 8.8.2021.
Ainoa Fiksu -koti 131, kohde numero 15
3mh+oh+k, khh, saunarakennus, ak+varasto
Asuinrakennus 90,5 m2 ja saunarakennus 19,5 m2
Ainoa Fiksu -malli numero 131
Tutustu Ainoa Fiksu -mallistoon K-Raudassa
Talon väri- ja pintamateriaalisuunnitelman on tehnyt sisustussuunnittelija Karoliina Lantto. Kohteen Cello-keittiö on Espoon K-Rauta Merituulen keittiösuunnittelijan Tanja Karhun käsialaa. Ainoa Fiksu -talon rakennuttaa K-Rauta Merituulen kauppias Petri Lappalainen. Talon sisustuksen ovat luoneet stylisti Anna Biström ja kuvittaja Kaisa Kartela.

Lastenhuoneessa on kuvittaja Kaisa Kartelan suunnittelema Cello-kuvatapetti, joilla on Suomalaisen Työn Liiton Design from Finland -merkki muistuttamassa suomalaisen työn merkityksestä ja siitä, että tuotteet on suunniteltu Suomessa.


Lisätietoja:
Tuotepäällikkö Timo Lukkarila, K-Rauta, puh. 050 619 75, [email protected]
PR-tuottaja Mere Sundqvist, K-Rauta, puh. 050 433 4078, [email protected]
K-Rauta – Yllättävän helppoa Me K-Raudassa autamme niin kodin kunnostamisen ensikertalaisia kuin ammattilaisiakin onnistumaan rakentamisessa ja remontoinnissa mahdollisimman vaivattomasti. Laajin valikoima ja parhaat palvelumme varmistavat, että projektisi onnistuu – niin kivijalassa kuin verkossakin. Sinua palvelee 128 uudistunutta kauppaa kattaen koko Suomen Tammisaaresta Ivaloon. K-Rauta.fi
