K-RAUDAN LEHDISTÖTIEDOTE 8.7.2021
K-Raudan ja Ainoakodin kohteessa Lohjan asuntomessuilla ihastuttavat taiteilijan työhuone, pihasauna ja kotimaisten pienyrittäjien tuotteet
Ainoa Fiksu -kohde yhdistää kompaktit tilat ja modernin ulkoasun Lohjan asuntomessuilla. Kuvittaja Kaisa Kartelan suunnittelemassa taiteilijan työhuoneessa on boheemia tunnelmaa, ja lastenhuoneen kuvatapetti vie iloisiin eläintarhatunnelmiin. Skandinaavisen vaaleassa talossa pääsee myös tutustumaan suomalaisten pienyrittäjien sisustustuotteisiin ja kalusteisiin.
Pienelle lapsiperheelle suunnitellun Ainoa Fiksu -kodin 110 neliötä on käytetty tehokkaasti. Kolme metriä korkeaa keittiötä ja olohuonetta valaisevat isot ikkunat, ja makuuhuoneita on kolme. Kohteen kaikki pintamateriaalit ovat K-Raudan valikoimasta. Oma saunarakennus kruunaa kokonaisuuden: saunan yhteydessä oleva vaalea tila toimii tarvittaessa myös työ- tai vierashuoneena ja sinne on erillinen sisäänkäynti terassin kautta.
Pienyrittäjien tuotteita, boheemin ilmeen työhuone ja kierrätystä lastenhuoneessa
Kotimainen suunnittelu tulee vahvasti esille Ainoa Fiksu -kodissa. Kohteessa näkyvät kotimaisten suunnittelijoiden ja pientuottajien tuotteet niin kuvatapeteissa, kalusteissa kuin sisustusesineissäkin.
Lastenhuoneen ja työhuoneen sisustuksen on suunnitellut kuvittaja Kaisa Kartela. Leikkisää tunnelmaa lastenhuoneeseen tuo Kartelan yksinoikeudella K-Raudalle luoma hauska Cello-kuvatapetti ”Kuuhunkurkottaja”. "Kuuhunkurkottajan eläinpoppoon luonnonläheinen värimaailma jatkuu myös muualla huoneen sisustuksessa. Iso osa kalusteista on hankittu kierrätettynä. Lastenhuoneessa nähdään lisäksi mitä suloisimpia kotimaisten pienyrittäjien tuotteita", Kartela kertoo.
Työhuoneessa Kartelan suunnittelua ohjasi hänen K-Raudalle suunnittelemansa kuvatapetti "Haaveilija". Boheemi ilme luotiin sisustuksella. "Työhuoneen sisustus on suunniteltu tavanomaisen etätyöpisteen sijaan harrastekäyttöön. Sisustuksen punaisen langan muodostaa ikkunan äärelle rakentuva taiteilijan työpiste tarvikkeineen. Kuvatapetin rauhallinen värimaailma toistuu muualla huoneessa lämpimän harmaan, valkoisen ja käsittelemättömän puun sävyissä. Työhuoneen piensisustuksen kohdalla oli luontevaa tehdä yhteistyötä kotimaisten muotoilijoiden kanssa, ja kalusteet tulevat niin ikään kotimaisilta yhteistyökumppaneilta”, kertoo Kartela.
Muiden tilojen sisustamisesta vastaa stylisti Anna Biström. ”Suunnittelutyötäni ohjasivat ennen kaikkea laadukkaat tuotteet, luonnonmateriaalit ja maanläheiset sävyt”, hän kertoo.
Tervetuloa tutustumaan!
Tule tutustumaan Asuntomessujen Ainoa Fiksu -kohteeseen ja hakemaan ideat sisustus- ja rakennusprojekteihin. Lohjan asuntomessut ovat avoinna 9.7. - 8.8.2021.
Ainoa Fiksu -koti 131, kohde numero 15
3mh+oh+k, khh, saunarakennus, ak+varasto
Asuinrakennus 90,5 m2 ja saunarakennus 19,5 m2
K-Raudan Ainoa Fiksu -malli numero 131
Tutustu Ainoa Fiksu -mallistoon K-Raudassa
Talon väri- ja pintamateriaalisuunnitelman on tehnyt sisustussuunnittelija Karoliina Lantto. Kohteen Cello-keittiö on Espoon K-Rauta Merituulen keittiösuunnittelijan Tanja Karhun käsialaa. Ainoa Fiksu -talon rakennuttaa K-Rauta Merituulen kauppias Petri Lappalainen. Talon sisustuksen ovat luoneet stylisti Anna Biström ja kuvittaja Kaisa Kartela.
Lisätietoja K-Raudan verkkosivuilla:
Tutustu asuntomessujen Ainoa Fiksu -kodin huoneisiin ja materiaaleihin
Tee se itse -ohjeita Ainoa Fiksu -kodin teemalla
Lisätietoja:
Tuotepäällikkö Timo Lukkarila, K-Rauta, puh. 050 619 75, [email protected]
PR-tuottaja Mere Sundqvist, K-Rauta, puh. 050 433 4078, [email protected]

Leikkisää tunnelmaa lastenhuoneeseen tuo kuvittaja Kaisa Kartelan yksinoikeudella K-Raudalle luoma hauska Cello-kuvatapetti ”Kuuhunkurkottaja”. Tapetilla on Suomalaisen Työn Liiton Design from Finland -merkki muistuttamassa suomalaisen työn merkityksestä ja siitä, että tuote on suunniteltu Suomessa.

Cello-malliston keittiössä ja avarassa olohuoneessa ovat esillä luonnonmateriaalit ja maanläheiset sävyt.

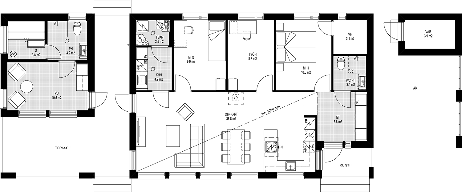
Ainoa Fiksu -kodin pohjapiirros
K-Rauta – Yllättävän helppoa
Me K-Raudassa autamme niin kodin kunnostamisen ensikertalaisia kuin ammattilaisiakin onnistumaan rakentamisessa ja remontoinnissa mahdollisimman vaivattomasti. Laajin valikoima ja parhaat palvelumme varmistavat, että projektisi onnistuu – niin kivijalassa kuin verkossakin. Sinua palvelee 128 uudistunutta kauppaa kattaen koko Suomen Tammisaaresta Ivaloon. K-Rauta.fi
